TE4
TECNOLOGÍA - 4º ESO





TIC
 




Tema 2. Instalaciones en viviendas








1.    Transporte de la energía eléctrica

2.    Instalación dentro del edificio

2.1.    Instalación de enlace

2.2.    Cuadro eléctrico. Cuadro de mando y protección.

2.3.    Grados de eléctrificación de una vivienda.

3.    Cableado de la instalación

4.    Diseño de la instalación.

5.    Esquemas eléctricos.

5.1.    Tipos de circuito de alumbrado

5.1.1.   Punto de luz simple

5.1.2.   Punto de luz conmutado

5.1.3.   Punto de luz de cruce

5.1.4.   Puntos de luz independientes

6.    Plano de la instalación eléctrica

6.1.    Plano de fuerza

6.2.    Plano de alumbrado

6.3.    Plano topográfico

7.    Ejercicios

aa

















 1. Transporte de la energía eléctrica


ss


Como ya habrás estudiado en otros cursos, la GENERACIÓN DE ENERGÍA ELÉCTRICA se produce en centrales de diversos tipos (térmica, nuclear, hidráulica, de energías alternativas, etc.). Hace falta transportar la electricidad desde estas centrales, que se encuentran lejos de los núcleos de población, hasta nuestras casas.

 

El TRANSPORTE se realiza a través de líneas de alta tensión (AT); al transportar la energía con un voltaje muy alto (entre 220.000 y 420.000 voltios) se reducen las pérdidas de energía y se minimiza el espesor de los cables. Aquí vemos un poste de alta tensión.



ss





En las proximidades de las ciudades se instalan centros de transformación o estaciones transformadoras, donde la corriente de alta o muy alta tensión (AT) se convierte en corriente de media tensión (MT), entre 132.000 y 20.000 voltios.

 

Una típica estación transformadora:

 

Fuente de la imagen: Wikipedia


aa

 

 

De la gran instalación transformadora la electricidad se traslada a través de líneas de media tensión (MT) a pequeñas subestaciones transformadoras que hay en cada barrio. En estas subestaciones la corriente se transforma nuevamente y pasa a corriente de baja tensión (BT), que es la que tenemos en casa (380 / 220 V).

 

Aquí vemos una pequeña subestación y un poste de baja tensión.

 


Fuente de la imagen: Wikipedia



aa



cc



2. Instalación dentro del edificio


 

2.1. Instalación eléctrica de enlace

 
Hemos visto hasta ahora el recorrido que hace la corriente desde la central eléctrica hasta los postes de baja tensión. La instalación de enlace une la red de distribución (1), pública o privada, con las instalaciones del interior de las casas, propiedad de los abonados.



En general consta de los siguientes componentes:

 

 

 


  cc

 

La acometida (2): en todas las instalaciones, tanto eléctricas, como de agua, como de gas, se llama acometida al punto en el que se conecta la red de distribución pública con el edificio.



Tras la acometida viene la caja general de protección (3) que nos encontramos en las fachadas de los edificios.

aa


 La línea general de alimentación (4) va de la caja general de protección hasta los contadores.


La Centraliazación de contadores (5), reune en un mismo lugar los contadores existentes de un edificio, los cuales  miden el consumo de energía eléctrica de los diferentes pisos.


 
 aa

 

La derivación individual (6) es el cable que sube hasta nuestro piso desde el contador en la planta baja del edificio. Llega hasta el cuadro eléctrico en el interior de nuestra vivienda.


En una vivienda unifamiliar no existe derivación individual y el cuadro eléctrico se coloca, junto con el contador, dentro de la caja general de protección. No existe entonces la línea general de alimentación ni derivación individual.

 

Finalmente, dentro de cada vivienda y ubicado normalmente detrás de la puerta, encontramos  el cuadro eléctrico (7) donde podemos encontrar los elementos de control y protección de nuestro piso.

 

Resumiendo, el esquema de la instalación será el siguiente:


aa


2.2. Cuadro eléctrico. Cuadro de mando y protección




aa

 

Se llama también cuadro de mando y protección. Se encuentra instalado a la entrada de la vivienda y de él salen todos los cables que van a los puntos de luz y tomas de corriente (enchufes) de la casa. Consta de los siguientes elementos:

 

El limitador de potencia o Interruptor de control de potencia (ICP): controla que el usuario no consuma una potencia superior a la que tiene contratada. Es decir, salta si encendemos demasiados aparatos de alto consumo. Limitando la potencia se limita la intensidad maxima, que pueden consumer los receptors eléctricos de la vivienda en un momento dado.


El ICP es un interruptor magnetotérmico automático que desconecta la instalación si se produce una sobrecarga elevada o un cortocircuito (protección electromagnética), o cuando se produce una sobrecarga pequeña pero de larga duración (disparo térmico).

 aa

 

El interruptor general automatico (IGA): al igual que el limitador y el diferencial, desconecta todo el sistema eléctrico de la vivienda. Salta cuando hay un cortocircuito, protegiéndonos de descargas eléctricas (IG en el dibujo).

 

El interruptor diferencial (ID): nos protege cuando existen fugas de corriente, es decir, cuando detecta que la corriente que sale del cuadro no es la misma que vuelve a él. Esto ocurre si en la carcasa de algún electrodoméstico hay algún cable que hace contacto y provoca una derivación de corriente. Si vas al cuadro eléctrico de tu casa, lo reconocerás porque casi siempre pone 30 mA (sensibilidad establecido para uso domestico). Este interruptor desconectará el circuito y de esta forma el usuario quedará protegido.

 

Los pequeños interruptores automáticos (PIA) de las distintas fases: cortan o permiten el paso de la corriente por los diferentes circuitos que forman la instalación. Realizan la función que los ICP, pero con la diferencia que cada uno de ellos protégé de forma selectiva e independiente a un solo circuito (alumbrado, enchufes, cocina, etc.)

 


2.3. Grados de electrificación de una vivienda.


Los cuadros generales de mando y protección no son siempre iguales. Las viviendas de nueva construcción deben cumplir unos requisites mínimos de electrificación en función de la superficie construida. Para este fin, el Reglamento electroténico de Baja Tensión (RBT) establece dos grados de electrificación de obligado cumplimiento para el constructor: electrificación básica y elevada. No obstante, será finalmente el usuario quien, dentro de los límites, seleccione la potencia que desea contratar:



aa

 

aa



3. Cableado de la instalación



Los cables que existen en una instalación eléctrica son tres:

 

a) La fase. Puede ser de color negro, marrón o gris (los tres cables inferiores

    de la foto). Lleva la corriente desde el cuadro a los distintos puntos de luz

   y tomas de corriente de la instalación.

aa


b)  El neutro: de color azul (el segundo en la foto). Trae la corriente de vuelta desde los puntos de luz y tomas de corriente hasta el cuadro.


 

c)  La toma de tierra (el primero en la foto). Es un tercer cable de color amarillo y verde por el que no pasa corriente si el circuito funciona bien, pero que en caso de fugas o derivaciones de corriente, conduce la electricidad hacia el cuadro eléctrico y luego hasta los electrodos de tierra, unas varillas metálicas grandes que se entierran en los cimientos del edificio.


Aquí vemos un cable de toma de tierra

 

 aa

 

Aquí vemos tomas de corriente con toma de tierra. La toma de tierra son los bornes metálicos, mientras que los agujeros son para la fase y el neutro.


aa


Y aquí vemos una base de toma de corriente sin toma de tierra, propia de una instalación antigua:

 

aa

 

Por otra parte, donde se juntan cables colocamos una caja de derivación como la de la figura:


aa


 

Dentro de la vivienda está el cuadro de distribución, del que parten los diferentes circuitos eléctricos. Podemos clasificarlos en dos tipos: los de alumbrado y los de toma de corriente. En la siguiente figura se han representado sobre una maqueta ambos circuitos junto con algunos detalles que suelen encontrarse asociados a este tipo de instalaciones.




aa



 


4. Diseño de la instalación

 

El Reglamento de Baja Tensión nos indica el número mínimo de puntos de luz y de tomas de corriente que debe haber en cada habitación para una vivienda de electrificación media:

 

HABITACIÓN

PUNTOS DE LUZ

TOMAS DE CORRIENTE

Entrada, vestíbulo

1

1

Salón

1 por cada 10 m2

1 por cada 6 m2, con un mínimo de 3

Dormitorio

1 por cada 10 m2

1 por cada 6 m2, con un mínimo de 3

Baño

1

1

Pasillo

1 por cada 5 m de largo

1 por cada 5 m de largo

Cocina

1 por cada 10 m2

6

 

Esta tabla no hay que sabérsela de memoria, os la daré en el examen si fuera necesario.


El redondeo se hace siempre hacia arriba puesto que la tabla nos indica los mínimos; es decir, en un salón de 21 m2 situaremos 4 tomas de corriente y 3 puntos de luz. En un pasillo de 7 metros de largo, 2 puntos de luz y dos tomas de corriente, etc.


En la cocina, de las 6 tomas de corriente sólo 2 van al circuito general de fuerza. Otra va al circuito especial para la cocina eléctrica y las otras 3 para el circuito de lavadora y lavavajillas (dos para lavadora y lavavajillas y otra para un posible termo eléctrico).

 

En el baño, la toma de corriente no va al circuito general de fuerza sino a un circuito aparte.

 


5. Esquemas eléctricos.

 

Existen varias formas de representar las conexiones eléctricas de viviendas, aunque la más extendida es la que se conoce como esquema unifilar; una representación de los circuitos que existen en el cuadro eléctrico dibujando un único cable (por eso lo de unifilar). Aquí tenemos los equemas eléctricos más representativos:

 

a)    Esquema unifilar.

b)    Esquema desarrollado.

c)    Esquema functional

d)    Conexiones en caja de derivación.


aa


Como hemos dicho, generalmente los planos se dibujan en forma de esquema unifilar, es decir, de los tres cables dibujamos uno solo, el de fase. Si quisieramos dibujar el esquema unifilar del circuito de alumbrado de una vivienda, teniendo en cuenta que el símbolo de los puntos de luz (bombillas) erán así:

aa

dibujariamos por lo tanto el cable de fase entrando en los distintos puntos de luz, pero no el neutro ni la toma de tierra que partirían del punto de luz e irían de vuelta hasta el cuadro eléctrico.

 

Aquí tenemos el esquema unifilar del circuito de alumbrado de una vivienda:

aa


5.1. Tipos de circuito de alumbrado.

En el esquema unifilar que acabamos de ver, tenemos diferentes tipos de circuitos en las diferentes habitaciones.

Una habitación puede tener los siguientes tipos de puntos de luz:

 

5.1.1. Puntos de luz simple.

En el pasillo de la vivienda del ejemplo tenemos el circuito más sencillo: un punto de  luz que se enciende desde un sólo sitio con un interruptor normal.

ss

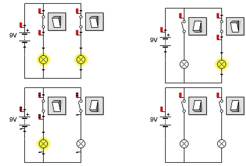
5.1.2. Puntos de luz conmutado.

Es el punto de luz que se puede encender desde dos sitios a la vez, como el del salón  en el ejemplo. Se instala con dos conmutadores; este dibujo te ayudará a entender como funciona:

 aa

En la posición 1 la bombilla está encendida (cables conectados).

Si yo pulso sobre cualquiera de los dos conmutadores (que no se distinguen en apariencia de un interruptor normal), la bombilla se apagará porque deja de haber contacto entre los cables (posición 2 o 3).

Si tenemos la bombilla apagada y pulsamos sobre cualquiera de los conmutadores, la bombilla se volverá a encender, o bien porque habremos vuelto a la posición 1, o bien porque nos habremos situado en la 4

 

5.1.3. Punto de luz de cruce.

Es el que tenemos en la cocina en el ejemplo: la luz se puede encender desde tres  sitios diferentes. Consta de los dos conmutadores que acabamos de ver y de un tercero (la llave de cruce) que al pulsarlo cruza los cables haciendo que la corriente se mueva en sentido contrario.

El esquema de funcionamiento que puedes ver en esta imagen es bastante complejo, pero te llega con saber que la llave de cruce se representa por un aspa ( X )


aa

 

5.1.4. Dos puntos de luz que encienden a la vez.

En el baño de la casa del ejemplo tenemos dos puntos de luz que encienden a la vez.  Los puntos de luz se conectan normalmente en paralelo para que las luces brillen más, pero colocando el interruptor de esta forma, un solo interruptor enciende y apaga las dos luces

 

aa


5.1.5. Dos puntos de luz independientes

En las habitaciones de la viviendam del ejemplom existen dos puntos de luz independientes. El circuito, que se conecta también en paralelo, tiene dos interruptores, uno para cada punto de luz. Podemos encender uno, el otro, los dos o ninguno


aa 

 


6. Plano de la instalación eléctrica.

Tras ver el esquema unifilar, ahora vamos a estudiar la representación de la  instalación eléctrica sobre el plano de planta de la vivienda.

 

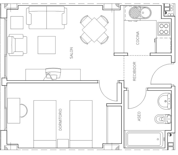
En primer lugar tenemos que partir del plano de la casa en planta.

 

 aa

Luego tendremos que ver cuantos puntos de luz y tomas de corriente habrá que usar en función de la superficie de cada habitación.


Supongamos que el salón tiene 25 m2, la cocina 12 m2, el recibidor 5 m2, el baño 8 m2 y la habitación 19 m2.



De acuerdo con la tabla del apartado 5 colocaremos los siguientes elementos:


HABITACIÓN

PUNTOS DE LUZ

TOMAS DE CORRIENTE

Salón

3

5

Cocina

2

6

Recibidor

1

1

Baño

1

1

Dormitorio

2

4

 


6.1. Plano de fuerza

Primero dibujamos el plano de las tomas de corriente. El símbolo es el siguiente:

dd


Se dibujan perpendiculares a la pared y deben distribuirse de forma lógica por cada habitación (no tiene sentido poner varias tomas muy juntas y luego dejar grandes espacios sin ninguna toma).


En el baño es importante no colocar la toma de corriente encima de la ducha o la bañera.


jj

 

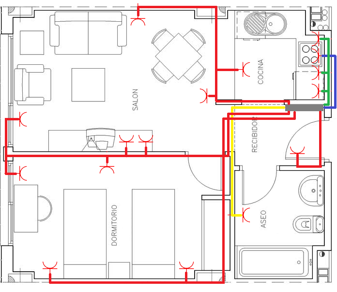
Una vez colocadas las tomas, sólo queda conectarlas con el cuadro eléctrico (que si no nos dicen nada dibujaremos en el recibidor). Sabemos que existen tres cables (fase, neutro y toma de tierra) pero sólo dibujamos el de fase.

 

Debemos tener cuidado de situar cajas de derivación donde haya que conectar cables y de no juntar los diferentes circuitos que aparecen en el esquema unifilar del cuadro eléctrico:

 

*         La toma del baño es un circuito aparte cuyo cable hemos pintado de amarillo para mayor claridad.

*        La toma de la cocina eléctrica tiene que ir también en un circuito aparte, por lo que el cable aparece en azul.

*         En la cocina hay otras tres tomas, unidas por un cable verde, que también constituyen un circuito aparte (lavadora, lavavajillas y termo eléctrico). Como en los otros casos, estos cambios de color son sólo para poner el plano más claro, en la realidad todos los cables de fase tienen el mismo color.


 aa

 

6.2. Plano de alumbrado.

Para no confundir, el plano de alumbrado lo dibujamos aparte del anterior de fuerza.

En primer lugar empezamos por situar los puntos de luz sobre el plano. El número de puntos de luz en cada habitación lo sacamos de la tabla; habrá que distribuirlos de una forma lógica (si hay un solo punto de luz tendrá que estar centrado y no en una esquina).

A continuación habrá que ver de qué tipo son esos puntos de luz. Vamos a suponer que nos dan las siguientes especificaciones:


 aa


*         En el baño y en el recibidor hay un punto de luz simple.

*         En la cocina dos puntos de luz que encienden desde un mismo sitio.

*        En el salón un punto de luz conmutado

*         En la habitación un punto de luz de cruce.

 

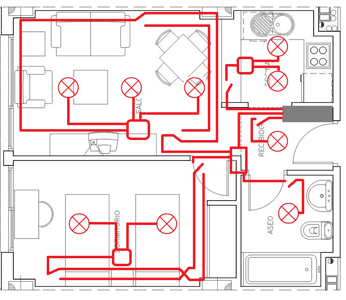
Primero representamos esto en el esquema unifilar del circuito de alumbrado:

 

aa 

A continuación sólo tenemos que trasladar este esquema unifilar al plano habitación por habitación y llevar todos los cables al cuadro eléctrico.

Es conveniente colocar los interruptores y conmutadores en sitios lógicos (al lado de las puertas y, en el caso de la habitación, a ambos lados de la cama). Donde se corten cables situaremos cajas de derivación:


 ss

 
6.3. Plano topográfico.


aa

7. Ejercicios

 

1)    Copia en tu cuaderno y completa la tabla con los elementos de la red distribución

 

TRAMO

DENOMINACIÓN

TENSIÓN

UBICACIÓN

G……………….

(AT) Alta tension

……….……   KV

Centrales  e…………………..

Transporte

(MT) …………………

……………..  KV

Entre generación y consumo

D………………

(BT) ………………….

320 – 220 V

Poblaciones, ciudades

 

2)    Describe brevemente en tu cuaderno los siguientes elementos:

*  Central eléctrica.

*  Alta tension.

*  Centro de transformación.

 

3)    Describe las partes que componen la instalación eléctrica de enlace.

*  Red de distribución

*  Acometida

*  Caja general de protección CGP

*  Línea repartidora

*  Derivación individual

*  Cuadro de distribución

 

4)    Define que es el cuadro eléctrico o cuadro de mando y protección.

 

5)    Explica como funcionan y para que sirven los elementos del cuadro de mando y protección.

*  Limitador de potencia o interruptor control de potencia (ICP)

*  Interruptor general automático (IGA)

*  Interruptor diferencial (ID)

*  Pequeño interruptor automático (PIA)

 

6)     Nombra los distintos circuitos del cuadro de mando y protección


aa

C1

C2

C3

C4

C5


7)    Elabora en tu cuaderno los diferentes esquemas eléctricos, según proceda.

aa

 

8)    Indica para que línea eléctrica se usan los distintos colores (realizado en tu cuaderno).

*  Conductor de color negro, marrón o gris

*  Conductor de color azul

*  Conductor de color verde-amarillo

 


9)      En la vivienda de la figura diseña el circuito de fuerza si los distintos espacios tienen las superficies siguientes:


Salón:  20 m2          Cocina:       10 m2             Recibidor: 5 m2
Baño:    5 m2           Dormitorio: 12 m2


aa

 

10)      En la vivienda anterior diseña el circuito de alumbrado en tu cuaderno.

 

11)    Representa el esquema unifilar del circuito de fuerza y de alumbrado en tu cuaderno.

 

12)      Representa la instalación eléctrica unifilar en el siguiente plano topográfico. Realizalo en tu cuaderno.


aa

aa


 















ATRÁS






INICIO






       































































































































































































































































































































Bienvenidos al mundo de la Tecnología